vvv - architecture urbansime <body><a href="https://vvv.cargo.site/">vvv</a><hr></body>

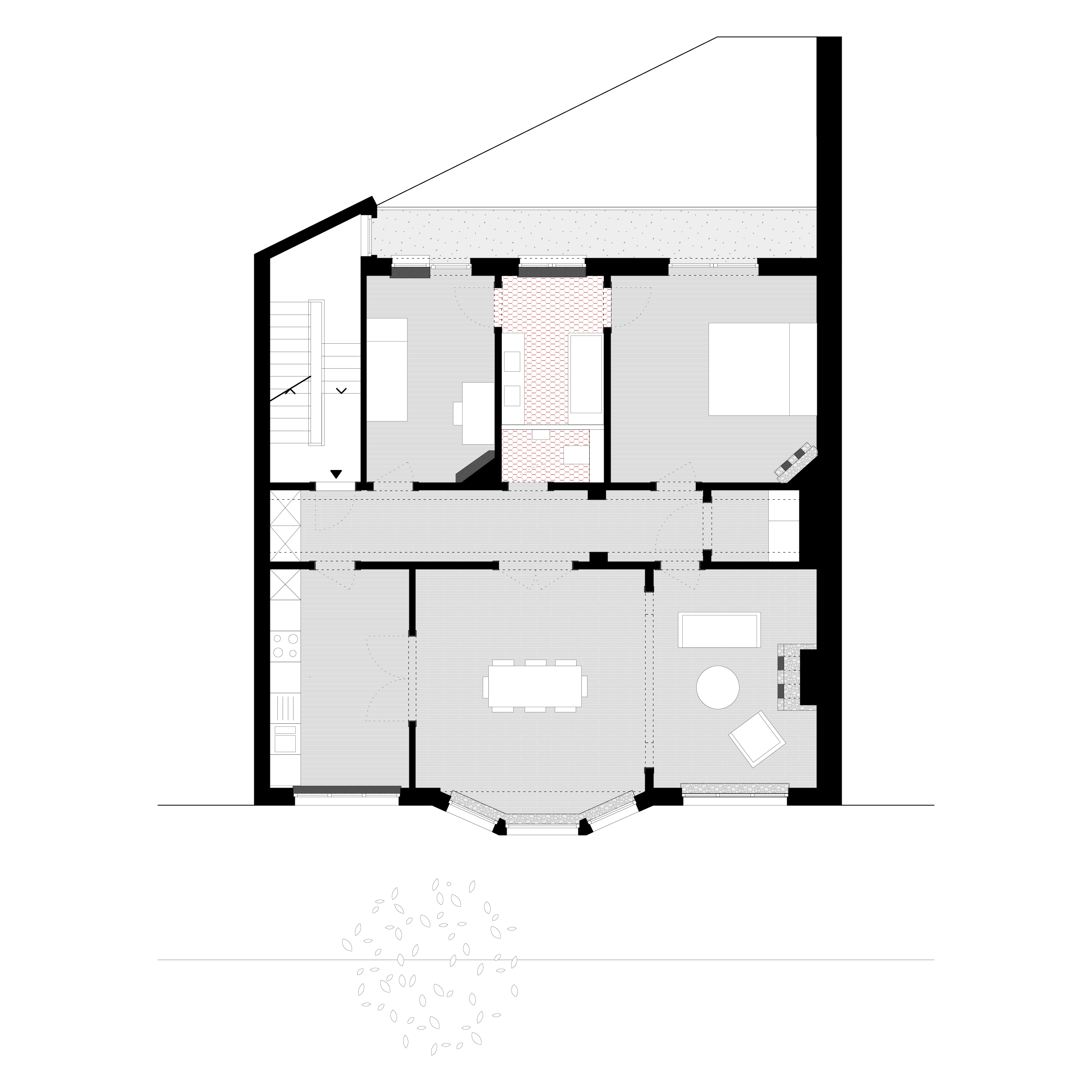
[rénovation à Ixelles]
  +
projets    news    info